Willkommen im GEMA Shop – Ihrem Experten für Heizungs-, Solar- und Sanitärtechnik seit 1991. Wir beraten Sie persönlich und bieten technische Lösungen.
  • schneller Versand

  • Kostenlose Hilfe und Beratung

  • 7 Tage die Woche geöffnet

+49 (0)39262 8787 - 20/21/23/12 *** verkauf@gema-net.de *** WhatsApp. +49(0)17660429928

A.B.S.  |  SKU: HP-FB18

Pelletsilo FLACHBODEN inkl. Gestell

Name: A.B.S. Silo- und Förderanlagen GmbH

Adresse: Industriepark 100, 74706 Osterburken

E-Mail: info@abs-silos.de

Webseite: https://abs-silos.de/

Europäischer Hersteller: Ja

Normaler Preis 3.015,13 €
inkl. MwSt. Kostenloser Versand innerhalb Deutschland

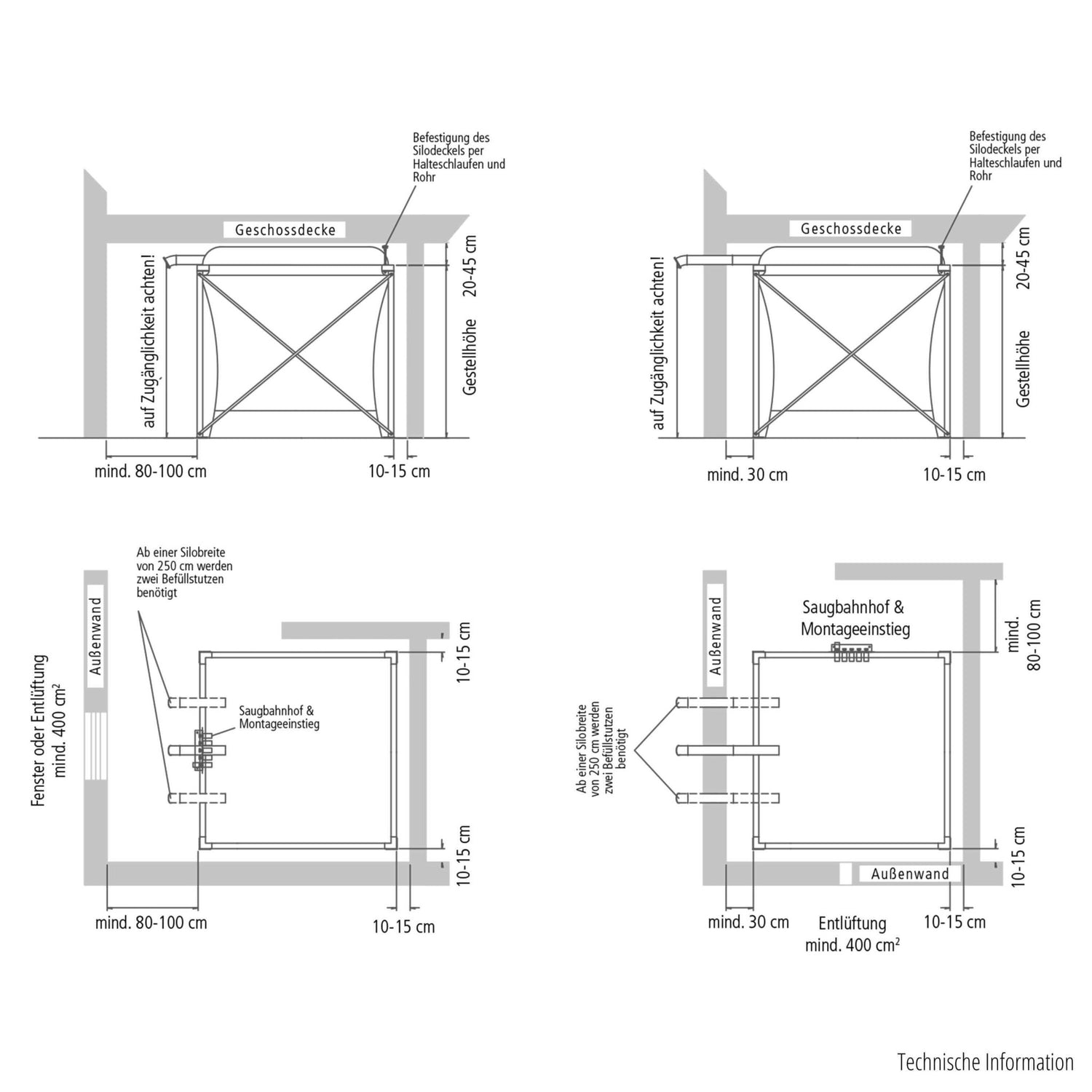
Gestellmaße
Raumhöhe

Lieferung und Versand

Die Bearbeitungszeit beträgt in der Regel 1 Werktag. Die Lieferzeit für Paketware ist 1-3 Werktage. Für Speditionsware ist die Lieferzeit 3-5 Werktage. Die Leiferzeiten außerhalb Deutschlands sind abweichend.

Beschreibung

Pelletsilo FLACHBODEN inkl. Gestell

A.B.S. Flachbodensilo Pellet - Preisattraktive Vollraumlösung - mehr geht nicht

von A.B.S. 

Mit dem würfelförmigen  Flexilo® FLACHBODEN (Pat.-Nr. 10 2009 033 230) von A.B.S. werden zwischen 80 und 90% des Pelletlagerraums ausgenutzt. So lassen sich Holzpellets optimal und platzsparend in fast jeder Räumlichkeit lagern selbst bei geringen Raumhöhen.

Highlights des Pelletsilo 

  • Höchstes Füllvolumen: Bis zu 90% des Pelletlagerraums ausnutzbar
  • Einfache und schnelle Montage
  • Ablassstutzen für manuelle Handentnahme serienmäßig
  • Sauganschlüsse, Montageeinstieg, Handentnahme und Füllleitung können an jeder Seite nach Ihrer Vorgabe angebracht werden
  • Sonderabmessung für jeden Einsatzzweck

Lieferumfang Flexilo® FLACHBODEN HP 18 inkl. Gestell

  • Silosack mit eingenähter Prallwand
  • Verzinktes Stahlgestell als Stecksystem inkl. Montagematerial
  • Passendes Befüllsystem (standardmäßig seitlich)
  • Inkl. Entnahme: 5 Saugsonden, manuelle Umschalteinheit und Saugschläuche im Innern
  • Haltekonstruktion für Silodeckel (Rohr muss bauseits gestellt werden)
  • Montageanleitung

Zahlung & Sicherheit

Zahlungsmöglichkeiten

  • American Express
  • Apple Pay
  • Bancontact
  • BLIK
  • EPS
  • Google Pay
  • iDEAL Wero
  • Klarna
  • Maestro
  • Mastercard
  • MobilePay
  • PayPal
  • Przelewy24
  • Shop Pay
  • Union Pay
  • Visa

Ihre Zahlungsinformationen werden sicher verarbeitet. Wir speichern keine Kreditkartendaten und haben keinen Zugriff auf Ihre Kreditkarteninformationen.

Kontaktieren Sie uns