JavaScript is required to view this page.
IBC kotol na splyňovanie dreva GK-7k-Öko – Účinný & Šetrné k životnému prostrediu | Obchod GEMA

Telefón +49(0)39262 878720

E-mail: gemashop@gema-net.de

WhatsApp: +49(0)17660429928

  • rýchle odoslanie

  • Bezplatná pomoc a poradenstvo

  • Bezproblémové vrátenie tovaru

  • Otvorené 7 dní v týždni

Anhaltinerring 17, 39439 Güsten

Otvorené Po-Št 7:00-17:00; Pia od 7:00 do 16:00; So 9:00 – 12:00

IBC  |  SKU: IBCGK730

IBC kotol na splyňovanie dreva GK-7k-Öko – účinný liatinový kotol & ekologicky 🌲🔥

Normálna cena 9.385,16 €
vrátane DPH. Zásielka bude účtovaná pri pokladni.


Doručenie a expedícia

Doba spracovania je zvyčajne 1 pracovný deň. Dodanie balíkov je 1 – 3 pracovné dni. V prípade zasielateľskej dopravy trvá doručenie 3 – 5 pracovných dní. Dodacie lehoty mimo Nemecka sa líšia.

Beschreibung

IBC kotol na splyňovanie dreva GK-7k-öko – Efektívne a ekologické vykurovanie

Ten/Tá/To Liatinové kotly Kotol na splyňovanie dreva IBC GK-7k-öko je ideálnym riešením pre ekologické a nákladovo efektívne vykurovanie drevom. Tento model je vybavený najmodernejšou technológiou splyňovania dreva a kombinuje energetickú účinnosť, odolnosť a vysokú environmentálnu kompatibilitu. Je ideálny pre domácnosti, ktoré chcú znížiť náklady na vykurovanie a zároveň prispieť k ochrane klímy.

Efektívna technológia splyňovania dreva

Ten/Tá/To Liatinové kotly sa spolieha na inovatívnu technológiu splyňovania dreva, ktorá umožňuje obzvlášť efektívne využitie paliva. Drevo sa najprv splyňuje v špeciálnej spaľovacej komore a potom sa výsledné plyny úplne spália v druhom procese. Toto dvojstupňové spaľovanie nielen zabezpečuje vyšší energetický výnos, ale aj minimalizuje emisie.

Vďaka vysokej účinnosti môžete dosiahnuť konzistentný a spoľahlivý tepelný výkon aj pri nízkej spotrebe dreva. IBC Liatinové kotly GK-7k-öko je preto energeticky úsporné a udržateľné riešenie vykurovania.

Šetrnosť k životnému prostrediu a nízke emisie

Kľúčovou výhodou kotla na splyňovanie dreva IBC sú jeho nízke emisie. Účinná technológia spaľovania minimalizuje častice sadzí a iné výfukové plyny. To znamená, že kotol spĺňa najprísnejšie environmentálne normy a je ideálny pre ekologicky uvedomelých používateľov.

Drevo je navyše obnoviteľný zdroj, ktorý spaľuje neutrálne z hľadiska CO₂. Vďaka tomu je kotol na splyňovanie dreva IBC GK-7k-öko udržateľnou alternatívou k fosílnym palivám, ako je ropa alebo plyn.

Kompaktný dizajn a jednoduchá inštalácia

Vďaka kompaktnému dizajnu je kotol GK-7k-öko priestorovo úsporný a ľahko sa inštaluje. Kotol sa ľahko zmestí do akéhokoľvek vykurovacieho systému a možno ho bezproblémovo integrovať do existujúcich systémov. Jeho konštrukcia zabezpečuje optimálne využitie aj menších kotolní.

Okrem toho je inštalácia minimálna, takže aj menej technicky zdatní používatelia profitujú z bezproblémovej inštalácie. Používateľsky prívetivé rozhranie zjednodušuje ovládanie a monitorovanie zariadenia.

Vysoká odolnosť a robustné materiály

Ten/Tá/To Liatinové kotly Splyňovací kotol na drevo IBC GK-7k-öko je vyrobený z vysoko kvalitných a odolných materiálov, ktoré zaručujú dlhú životnosť. Komponenty odolné voči teplu a korózii zaisťujú spoľahlivú prevádzku aj pri intenzívnom používaní po mnoho rokov.

Vďaka sofistikovanému dizajnu a robustnej konštrukcii je kotol dlhodobo ziskovou investíciou. Vďaka svojej odolnosti zostávajú náklady na údržbu zvládnuteľné a používatelia sa môžu spoľahnúť na konzistentne vysoký výkon.

Jednoduché čistenie a údržba

Ďalšou výhodou kotla na splyňovanie dreva IBC je jeho jednoduché čistenie a údržba. Kotol je navrhnutý tak, aby sa zvyšky a popol dali rýchlo a bez námahy odstrániť. Pravidelné intervaly údržby sú jednoduché, čo šetrí čas a námahu.

Vďaka optimalizovanej konštrukcii zostáva účinnosť kotla dlhodobo konštantne vysoká a prevádzkové náklady nízke. Vďaka tomu je kotol na splyňovanie dreva IBC obzvlášť užívateľsky prívetivý a vhodný na každodenné používanie.

Záver: Ekonomické a udržateľné riešenie vykurovania

Splyňovací kotol IBC GK-7k-öko zaujme svojou energetickou účinnosťou, ekologickosťou a odolnosťou.Jeho inovatívna technológia splyňovania dreva zaisťuje optimálny tepelný výkon s minimálnou spotrebou paliva a nízkymi emisiami. Jeho kompaktný dizajn a jednoduché používanie z neho robia ideálnu voľbu pre každú domácnosť, ktorá si cení udržateľnosť a nákladovú efektívnosť.

Extrémne dlhá životnosť vďaka konštrukcii liateho článku.

Rozhodnite sa s IBC Liatinové kotly GK-7k-öko pre vykurovacie riešenie pripravené na budúcnosť, ktoré vám zaručí dlhotrvajúce teplo a nízke prevádzkové náklady.

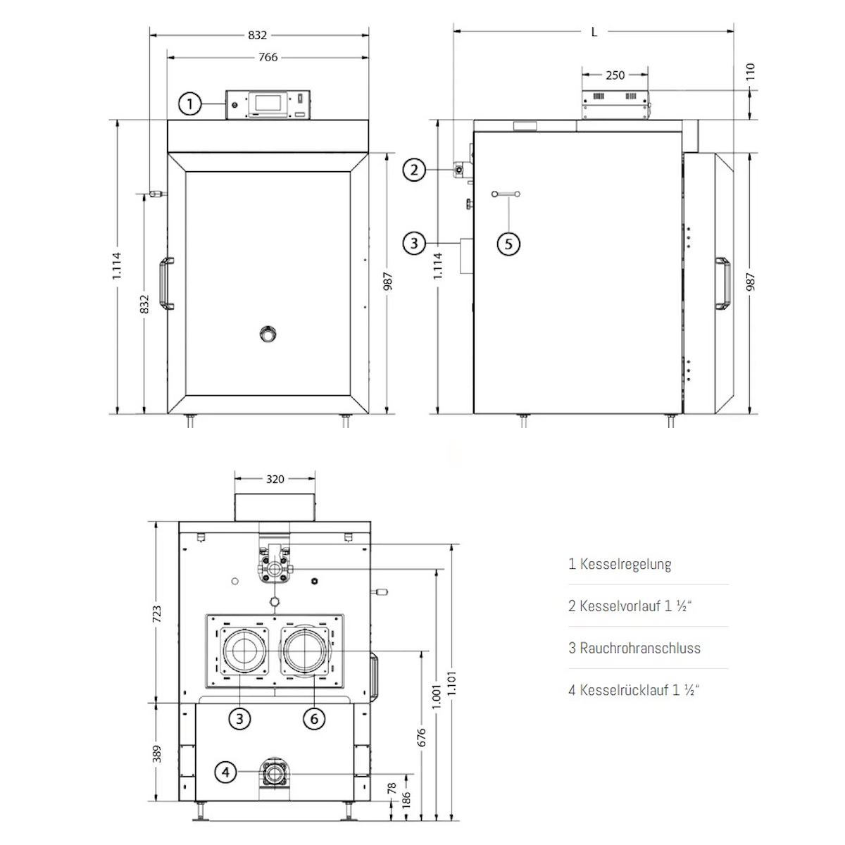
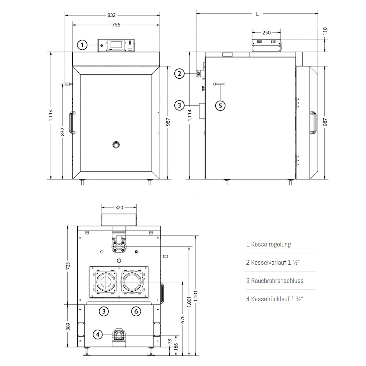
Technické údaje

  • Menovitý tepelný výkon 30 kW
  • Počet článkov 6
  • Objem plniacej komory 120 litrov
  • Účinnosť 91,44 %
  • Hmotnosť 700 kg
  • Rozmery kotla s opláštením (V x Š x H) 1 224 x 832 x 1 205 mm
  • Rozmery liateho telesa kotla (V x Š x H) 980 x 650 x 1 061 mm
  • Otvor dvierok spaľovacej komory (Š x V) 476 x 254 mm
  • Hĺbka spaľovacej komory 550 mm
  • Predpripojenie kotla & Návrat 1 1/2"
  • Pripojenie dymovodu 160 mm
  • Prípustný prevádzkový tlak 3 bary
  • max. prevádzková teplota 100 °C
  • min. teplota spiatočky &>55 °C
  • Teplota výfukových plynov 160 – 180 °C
  • Hmotnostný prietok výfukových plynov 17,15 g/s
  • požadovaný tlak pri doprave 10 Pa

Rozsah dodávky

  • Liatinový kotol IBC GK-7k-eko 30 kW
  • Integrovaný internetový modul s možnosťou bezplatného používania aplikácie
  • Zhromaždenie &Návod na obsluhu

platba & Bezpečnosť

Možnosti platby

  • American Express
  • Apple Pay
  • Bancontact
  • BLIK
  • EPS
  • Google Pay
  • iDEAL
  • Klarna
  • Maestro
  • Mastercard
  • MobilePay
  • PayPal
  • Przelewy24
  • Shop Pay
  • Union Pay
  • Visa

Vaše platobné informácie sú spracované bezpečne. Neukladáme ani nepristupujeme k informáciám o vašej kreditnej karte.

Recenzie zákazníkov

Buďte prvý, kto napíše recenziu
0 %
(0)
0 %
(0)
0 %
(0)
0 %
(0)
0 %
(0)

Kontaktujte nás

reviews
See all reviews